The Project
A new cantilever bridge has been constructed alongside Wolfe Tone Bridge, the vital link across the River Corrib, and has neaco’s sandblasted Neatdek 188 product installed. Being one of the busiest crossings in Galway City, the new pedestrian walkway has been manufactured in a similar design to the existing cantilever walkway on the other side of the bridge to improve pedestrian safety.
![]()
The bridge was officially opened by the Minister for Transport, Eamonn Ryan, and the Mayor of Galway City, Eddie Hoare. It now provides pedestrians safe crossing to and from the historic Spanish Arch and Claddagh areas. This bridge is part of a bigger travel scheme in Galway to provide a safer space for cycling, wheeling, and walking.
The Specification
neaco worked closely with Ryan Hanley who were appointed by Galway City Council to supply Engineering and Environmental Consultancy Services to the new bridge. The specification was designed with the intent of achieving very high slip resistance due to its proximity to the river.
![]()
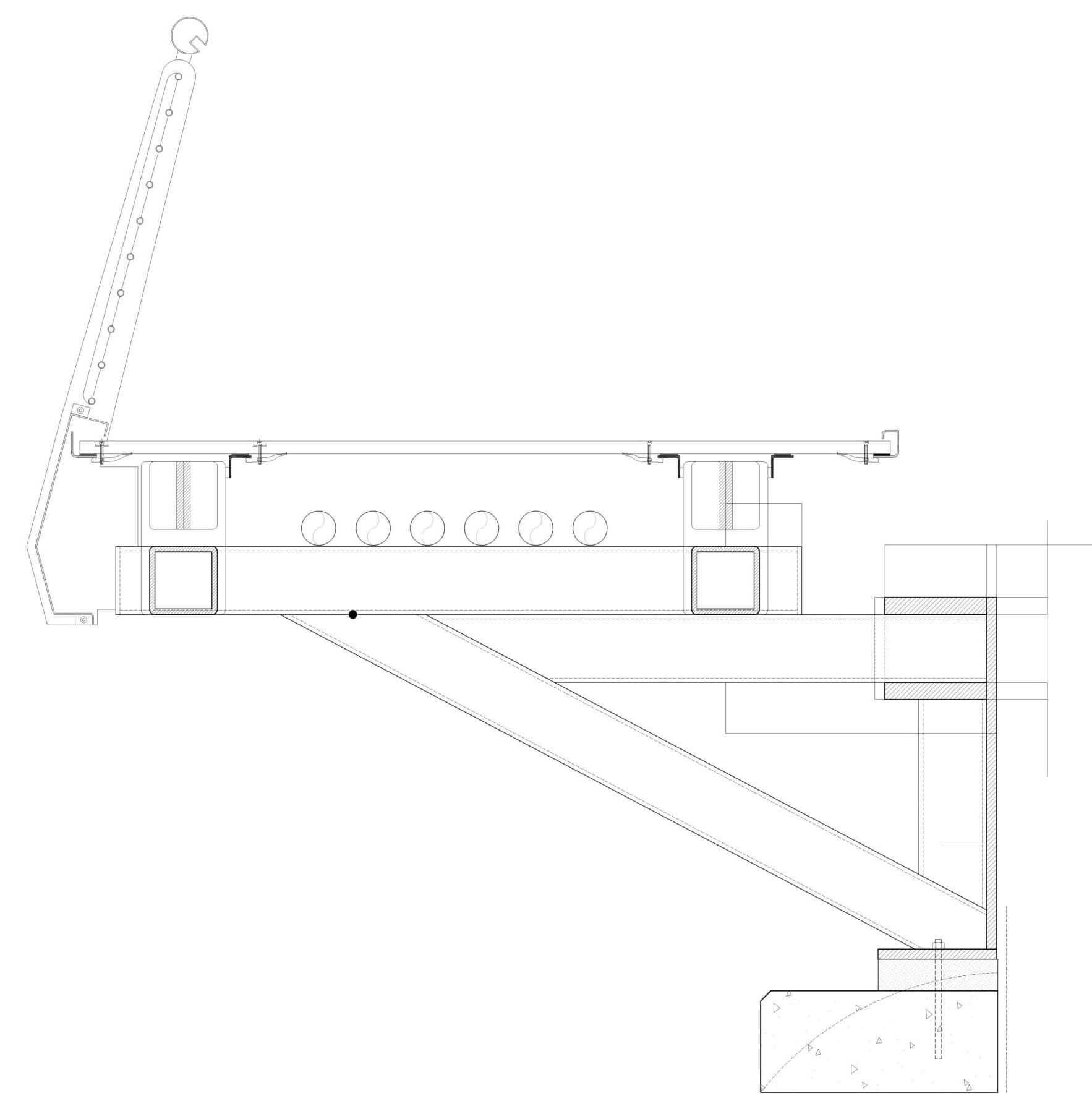
We manufactured and supplied Ryan Hanley with our Neatdek 188 Aluminium Decking product which is precision-engineered using our patented swage-press method to create the maximum level of structural integrity. The outstanding structural efficiency is achieved by passing a swage bar through the load bar without cutting into the top or bottom edge, thus providing a panel of great rigidity and strength. The Neatdek 188 was then blasted with a calcium silicate stone sandblasted finish to achieve the PTV of low slip potential even when wet.

Many features set our decking solutions apart, from the range of precision-engineered T-bar profiles to innovative built-in drainage systems, but one of the most important is their swage-locked construction which is unique to the market.
Lightweight
Available in lengths of up to 7m long by a nominal 992mm wide, our aluminium decking panels are approximately 1/3 of the weight of steel panels yet non-corrosive and easy to install.
Savings
Due to fire safety requirements, steel joists are now widely used instead of timber joists, but steelwork is expensive. That means substantial savings can be made with our decking because its structurally efficient design needs fewer supporting joists.
Spanning
With neaco’s Aluminium Decking Systems, joists are only required at centres of between 700mm and 2050mm (depending on the profile depth) compared to around 450mm for many plank alternatives.
Universal
The swage-locking technology is used across all our flooring products, from industrial flooring to balcony decking. All these benefits apply.
Before

After

The Process
neaco have been at the forefront of modular decking design for over five decades. We pioneered the concept of non-combustible aluminium decking long before the industry widely adopted it in response to Grenfell. Various competitors have followed us into the market, but none offer the expertise of our in-house technical team and the unique qualities of our decking systems.
Our swage press carries 150 tons of pressure onto the swage bars that go through our aluminium T bar extrusions to expand the bars into the square holes so the bars are locked into place, with no need for hot works or welding, and in turn, creating the maximum level of structural integrity.
The Result
“neaco has been supplying decking specifications on bridge projects for over five decades. We are delighted to add Wolfe Tone Bridge to the List.”
Ask Us For a Quote
Our friendly, expert team are on hand to speak with you and advise on your requirements.

